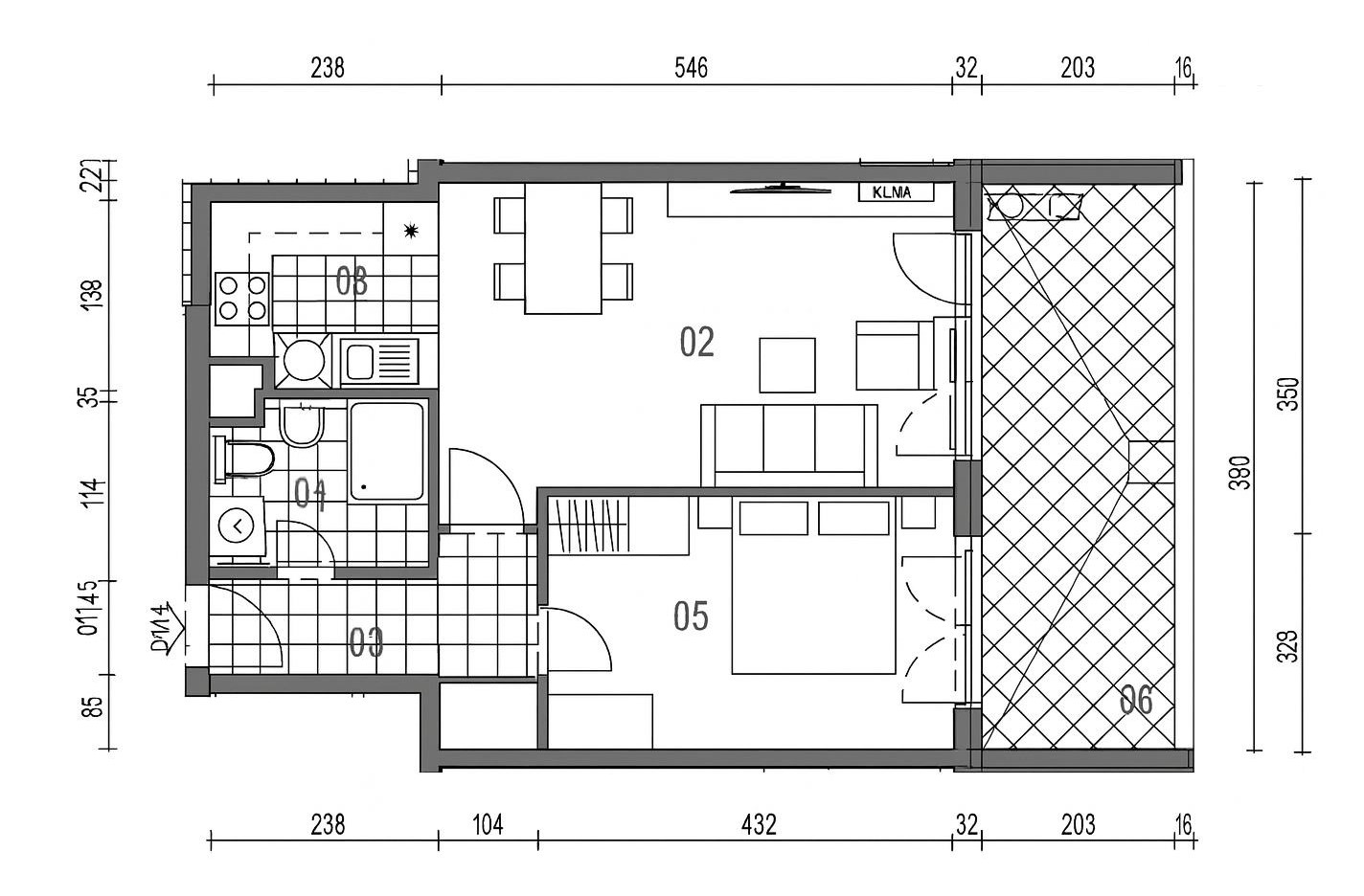
Prodaje se moderno uređen dvosoban stan površine 55 m² na prvom katu kvalitetne zgrade s liftom u Lovinčićevoj ulici građene 2022.godine. Dovoljno je povišen od tla I predstavlja pravi prvi kat. Odličnog je rasporeda i odmah useljiv. Sastoji se od ulaznog prostora, kuhinje, dnevnog boravka, spavaće sobe, kupaonice i loggie dovoljne veličine za stol i stolice.
Stan je opremljen protuprovalnim vratima, video-portafonom, klima uređajem, grijanjem preko podstanice, te svim potrebnim kvalitetnim kućanskim aparatima (perilica rublja, perilica suđa, mikrovalna, itd.). Kuhinja je rađena po mjeri i potpuno nova.
Uz stan je moguće kupiti i garažu površine 17,5 m2, koja se prodaje odvojeno, te se može dodatno pregraditi i napraviti ostavu.
Izvrsne je lokacije a u blizini su trgovine, škole i vrtići, što pruža iznimnu udobnost i praktičnost za svakodnevni život. Tramvajska stanca je na nekoliko minuta hoda.
Za više informacija, kontaktirajte agenta na 095 522 33 13.


